
發布時間:2021-06-22 14:49
>項目背景
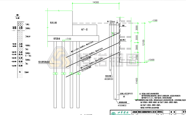
山東重點項目1.43億元聊城市人民醫院醫療保健中心二期項目,項目為總建筑面積為89,481平方米的醫療發展,包含:一幢13層高的病房樓。采用R51自鉆式螺旋翼板中空錨固系統做預應力錨桿,鉆進深度18-22m。

>項目概覽
1.項目工期:2020年9月—2021年3月
2.服務范圍:錨固材料、現場技術服務
3.應用場景:建筑基坑支護
4.應用結構:自鉆式中空錨桿用作預應力錨桿
5.項目用量:近10000m
6.地質條件:擬建物場地內地基土在勘探深度內為第四系黃河沖積物和人工填土,基坑挖深范圍土層為:雜填土、粉質粘土、含粉土砂、粉質粘土、粉土、粉質粘土、粉土、粉細砂。
>問題與挑戰
基坑開挖基底標高為-13.6m,采用排樁支護,雙排樁或三排樁,有效樁長21.5m,樁頂設置冠梁,排樁頂沿基坑周邊設置鋼筋混凝土板,設置1-3道R51自鉆式錨桿,錨桿長度15-22m,基坑坡面施工掛網噴射混凝土面層,掛單層鋼筋網。錨桿入射角為25°,穿過攪拌樁截水帷幕和既有支護樁進入既有建筑物基樁之間。

>解決方案
錨桿體端部安裝螺旋葉片,采用旋轉鉆進方法,同步鉆進和注漿一次鉆進即可實現成孔、注漿和錨固,Ф150mm螺旋葉片擴大鉆孔直徑。注漿液采用水泥漿,一、二次注漿水灰比均為0.5-0.55。錨段強度大于15MPa且不小于設計強度的75%時,施加預應力,大小為設計載荷的0.9-1.0倍。安裝腰梁及墊板螺母,最后使用液壓千斤頂按設計要求張拉鎖定完成。

>施工工藝
物料準備→鉆機就位→連接中空錨桿及鉆頭→同步鉆進與注漿→接長錨桿體→重復鉆進及注漿→鉆孔完成→安裝腰梁錨頭→張拉鎖定→下一層錨桿安裝→安裝完成
>施工設備
鉆機:履帶式液壓回轉鉆機
施工效率:每米純鉆進平均用時0.77min


>項目測試
無

郵箱:hengnuo@lyhengnuo.com
地址:洛陽市洛龍區洛龍科技園區張衡街
官方微信:洛陽恒諾錨固技術有限公司
微信號:hengnuomaogu
COPYRIGHT ? @2002-2024 版權所有 豫ICP備2021016006號-1站點地圖
豫公網安備41031102000303